2D/3D Layouts

Home 2D/3D Layouts

“See it before it’s built – 2D and 3D layouts for perfect spaces.”

2D and 3D layouts are essential tools for visualizing, planning, and executing interior and architectural projects. They help clients and designers see the space clearly, make informed decisions, and ensure that the final outcome aligns with the vision.

2D/3D Layouts Services

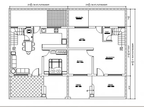
  • 2D Floor Plans

    Accurate top-view plans showing room dimensions, furniture placement, and circulation.

  • Elevations & Sections

    Detailed vertical views for walls, doors, windows, and furniture layouts.

  • 3D Visualizations

    Realistic renders showing furniture, lighting, materials, and textures.

  • Walkthroughs & Virtual Tours

    Immersive experiences to explore the space before execution.

  • Furniture & Decor Placement

    Proper positioning for functionality and aesthetics.

  • Material & Color Simulation

    Preview finishes, colors, and textures in real-time.

  • Space Optimization

    Analyze layouts for efficiency, comfort, and usability.